Купить золоуловитель ЗУ-1 в Черкесске

  • Компактный золоуловитель для твердотопливных котлов
  • Может устанавливаться как сразу за котлом, так и на улице
  • Универсальная конструкция позволяет организовать выход справа или слева, в зависимости от компоновки газоходов
Цена с НДС:
124 000 рублей
Цена с НДС на золоуловитель ЗУ-1 с доставкой в
от 124 000 рублей
Условия в
В наличии на складе
Доставка ТК по России и Казахстану
Безналичный расчет
Есть в наличии
Золоуловитель ЗУ 1
Золоуловитель ЗУ-1
Котел с золоуловителем ЗУ 1
Котел КВр с золоуловителем ЗУ-1
Устройство золоуловителя ЗУ 1
Устройство золоуловителя ЗУ-1
Изготовление золоуловителя ЗУ 1
Изготовление золоуловителей ЗУ-1
Производство золоуловителей ЗУ 1
Производство золоуловителей ЗУ-1
Золоуловитель ЗУ 1
Котел с золоуловителем ЗУ 1
Устройство золоуловителя ЗУ 1
Изготовление золоуловителя ЗУ 1
Производство золоуловителей ЗУ 1
Видеообзор
Производительность 8000 м³/ч
Применяемость 1.7-1.86 МВт
Технические
характеристики
Описание
товара
Сертификаты
и гарантии

Технические характеристики

Тип циклона Золоуловитель
Вид ЗУ
Марка ЗУ-1
КПД 80 %
Производительность 8000 м³/ч
Аэродинамическое сопротивление 700 (70) Па (мм. вод. ст.)
Допустимая температура газов на входе до 250 °C
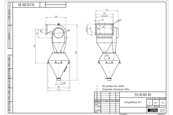
Сечение входного отверстия 450х800 мм
Диаметр выходного отверстия 490 мм
Объем бункера накопителя 1.2 м³
Габаритные размеры: длина, ширина, высота 1170х1175х2870 мм
Направление газового потока правое
Масса 370 кг
Применяемость 1.7-1.86 МВт
Чертеж золоуловителя ЗУ-1
Золоуловитель ЗУ-1 чертеж

Золоуловитель ЗУ-1 в Черкесске

Золоуловители ЗУ-1 представляют собой горизонтальный циклон, предназначенный для сухой инерционной очистки газов от летучей золы (более 50 мкм) с максимальной температурой 260°С. Золоуловители ЗУ 1 могут устанавливаться, как сразу за котлом, так и за пределами котельной на группу котлов. Эксплуатируются в помещениях и вне помещений котельных под навесом при температуре окружающего воздуха от - 60°С до +40°С.

Золоуловитель ЗУ 1 относится к типу горизонтального циклона по расположению оси очищаемого потока газа. Дымовой газ поступает во входное отверстие и движется между криволинейными стенками корпуса. Под действием гравитационных сил из потока очищаемого газа выделяются твердые частицы, которые накапливаются в бункере. Зола удаляется через шибер снизу. Очищенный газ отводится из золоуловителя по патрубку через круглое выходное отверстие на боковой стенке.

В комплект поставки золоуловителей входит: бункер-накопитель и корпус золоуловителя.

Золоуловитель ЗУ-1 применяется для улавливания золовых отложений после водогрейных котлов КВр и КВм мощностью 1.7 МВт, 1.74 МВт, 1.86 МВт.

Купить золоуловители ЗУ 1

Для того чтобы купить золоуловители ЗУ-1, в Черкесске вы можете сделать заявку в отдел сбыта по телефону 8-800-700-06-43, либо оформить заявку онлайн. Золоуловители ЗУ 1 транспортируются автотранспортом и ж/д контейнерами. Для расчета стоимости доставки заполните заявку и инженеры консультанты проведут расчет стоимости доставки до вашего города или населенного пункта.

Сертификат для золоуловителей
Сертификат на золоуловители

Отзывы о продукции

Другая похожая продукция

Цена по
запросу
Цена по
запросу
Цена по
запросу