Котел 4000 кВт дизельный в Черкесске

  • Автоматическое регулирование температурных режимов
  • Надежная гладкотрубная конструкция исключает деформации и разрывы швов
  • Встроенная система взрывобезопасности
  • Низкие требования к качеству питательной воды
  • Модель работает с отечественными горелками EMMA, ILKA, РГМГ, ГБЛ, ГМ, ГМГ, АПНД, ГГ и импортными горелками UNIGAS, BALTUR, ECOSTAR, FBR S.R.L.
  • Наш завод также производит модели котлов для работы на российских горелках БИГ, ГМГ, РМГ, ГГ, РГМГ.
Цена с НДС:
1 680 000 рублей
Цена с НДС на котел 4000 кВт дизельный с доставкой в
от 1 680 000 рублей
Условия в
В наличии на складе
Доставка ТК по России и Казахстану
Безналичный расчет
Есть в наличии
Можно купить в лизинг
Дизельный котел 4.0 МВт
Котел 4.0 МВт дизельный
Дизельный котел 4.0 МВт водогрейный
Водогрейный дизельный котел 4.0 МВт
Дизельные котлы 4.0 МВт
Котлы 4.0 МВт на дизеле
Промышленные дизельные котлы 4.0 МВт
Промышленные котлы 4.0 МВт на дизеле
Дизельные котлы 4.0 МВт - производство
Производство дизельных котлов 4.0 МВт
Дизельный котел 4.0 МВт
Дизельный котел 4.0 МВт водогрейный
Дизельные котлы 4.0 МВт
Промышленные дизельные котлы 4.0 МВт
Дизельные котлы 4.0 МВт - производство
Видеообзор
Вид топки Дизельная горелка
Максимальная тепловая мощность 4000 кВт
Топливо Дизель, Жидкое
Отапливаемая площадь от 33400 до 44000 м²
Технические
характеристики
Описание
товара
Комплект
поставки
Дополнительное
оборудование
Монтаж и схемы
подключения
Сертификаты
и гарантии
Подбор
котла

Технические характеристики котла 4000 кВт дизельного

Вид Водогрейный
Тип отопительного котла Жидкотопливный
Бренд HeatExpert
Тип Котел КВа
Вид топки Дизельная горелка
Максимальная тепловая мощность 4 МВт
Максимальная тепловая мощность 4000 кВт
Максимальная тепловая мощность 3.44 Гкал
Диапазон регулирования мощности 40-100 %
Топливо Дизель, Жидкое
Низшая теплота сгорания проектного топлива 10200 кКал/нм³
КПД котла на ДИЗЕЛЕ, не менее 92.7 %
Расход ДИЗЕЛЯ среднечасовой за отопительный сезон 204 кг/ч
Расход ДИЗЕЛЯ при максимальной нагрузке котла 364 кг/ч
Расход условного топлива 530 кг/ч
Максимальная температура воды на выходе из котла 115 °C
Минимальная температура воды на входе в котел 55 °C
Давление рабочей среды 0.3-0.6 (3-6) МПа (кгс/cм²)
Номинальный расход теплоносителя 138 м³/ч
Расход теплоносителя через котел min-max 103-172 м³/ч
Гидравлическое сопротивление при номинальном расходе не более 0.07 (0.7) МПа (кгс/cм²)
Аэродинамическое сопротивление 340 (34) Па (мм. вод. ст.)
Давление в топочной камере 390 (39) Па (мм. вод. ст.)
Объем уходящих газов 7100 м³/ч
Температура уходящих газов, не более 152 °C
Тяга Принудительная
Водяной объем котла 1700 л
Объем топочной камеры 10.42 м³
Размер топочной камеры: длина*ширина*высота 4625х1610х1400 мм
Присоединительные размеры по водяному тракту 200 Ду
Присоединительные размеры газохода уходящих газов, ширина*высота / сечение 1200х215/0.26 мм/м²
Размеры корпуса котла, длина*ширина*высота, погрешность ±50 4925х1865х2620 мм
Габаритные размеры котла, длина*ширина*высота 5155х2005х2720 мм
Масса 6700 кг
Конструкция котла водотрубная
Количество контуров Одноконтурный
Размещение Напольный
Тип камеры сгорания Закрытый
Управление Электронное
Энергонезависимый Нет
Тип питания Трехфазное
Встроенный циркуляционный насос Нет
Встроенный расширительный бак Нет
Марка HeatExpert
Энергоэффективность Высокая
Отапливаемая площадь от 33400 до 44000 м²
Отапливаемый объем от 100200 до 132000 м³
Чертеж котла КВа 4.0 ГЛЖ
Котел КВа 4.0 ГЛЖ чертеж

Дизельный котел 4000 кВт для отопления в Черкесске

Трехходовой промышленный дизельный котел 4000 кВт Черкесск устанавливается в стационарных и блочно модульных котельных для отопления и горячего водоснабжения больших производственных помещений и маленьких зданий, складов, гаражей, цехов, ангаров, автосервисов, школ, садиков, клубов, магазинов, больниц, санаториев, теплиц, птицефабрик, СТО, площадью 33400 – 44000 м2.

Российский дизельный котел 4000 кВт отопительный водогрейный использует в качестве топлива легкое дизельное топливо, работает в открытых и закрытых системах теплоснабжения с принудительной циркуляцией воды при рабочем давлении до 0,6 МПа и температурой нагрева до 95 - 115 °С.

Особенности наших котлов

Трубный стальной дизельный водогрейный котел 4000 кВт работает с длинофакельными блочными отечественными и импортными горелками таких производителей, как EMMA, ILKA, CIB UNIGAS, BALTUR, ECOSTAR и другими. Наш завод также производит модели котлов для работы на российских горелках РГМГ, ГБЛ, ГМ, ГМГ, АПНД, ГГ.

Регулирование заданных температурных режимов производится в автоматическом режиме, за счет чего обеспечивается эффективное сжигание топлива.

Экономичная работа котла обеспечивается максимальным снижением потерь теплоты, соответственно меньшим расходом топлива. Для исключения теплопотерь, мы сделали наши котлы газоплотными, с качественной теплоизоляцией.

В водотрубных котлах теплоноситель поступает через коллектора с перегородками и распределяется по трубной системе равномерными потоками с высокой скоростью. Такая схема движения потока воды исключает образование застойных зон, локальный перегрев поверхностей нагрева, местное выпадение солей и отложения накипи, и делает агрегат менее требовательным к качеству питательной воды.

Водотрубная конструкция котла максимально безопасна в работе. Даже при внезапном снижении давления внутри теплогенератора до атмосферного не произойдет выделение пара, и он не взорвется.

Устройство водогрейного котла 4000 кВт на дизеле

Котельный блок

Котельный блок имеет гладкотрубную конструкцию, что обеспечивает повышенную надежность. Трубная система собирается из труб ввариваемых в коллектора, а не в трубные доски. В таком теплогенераторе отсутствует давление перегретых труб на трубную доску и напряжения в сварных швах, вызывающее деформации и разрыв швов.

Гладкотрубная поверхность нагрева воды имеет развитую поверхность, при компактных внешних размерах плотный пучек конвективных труб, расположенных в шахматном порядке и омываемый дымовыми газами в поперечном направлении обеспечивает высокую тепловую эффективность котельного блока. Газы в котле делают три хода – в топке, в первом конвективном пакете и во втором.

Топка

Промышленный водогрейный котел 4000 кВт на дизеле выполнен с газоплотной топкой. Топка газоплотного исполнения максимально снижает теплопотери с уходящими продуктами сгорания, сохраняя свою герметичность даже при многократных растопках и остановках. Газоплотная топка исключает присосы холодного воздуха, что приводит к увеличению температуры факела и скорости горения, тем самым снижая механический недожег.

В заднем экране топки установлен взрывной клапан, предохраняющий конструкцию котлоагрегата от разрушения при возникновении избыточного давления в топке. Горелка крепится во фронтовой части топочной камеры. Отверстие во фронтальной плите изготавливается под конкретную модель горелки.

Топка такой конструкции позволяет использовать облегченную теплоизоляцию. Легкая обмуровка снижает массу котла и упрощает обслуживание котлоагрегата.

Конвективная часть котла

Конвективный пакет представляет собой ряд труб расположенных в шахматном порядке. Шахматное расположение труб позволяет максимально омывать поверхности нагрева, тем самым снижая потерю теплоты и повышая теплоотдачу. Увеличение теплопередачи позволяет снизить расход топлива. Применяемая схема противотока снимает тепло из выходящих газов и с теплоносителем возвращает его обратно в промышленный водонагревательный котел отопления на дизельном топливе.

Многочисленные перегородки, установленные в коллекторах теплового котла, направляют поток теплоносителя, исключая возникновение застойных зон и локальный перегрев поверхностей нагрева. Высокие скорости и турбулизация потока воды снижают образование накипи, производственный дизельный котел 4000 кВт надежно работает без специальных мероприятий по химводоподготовки.

Совместимые горелочные устройства

Автоматический водогрейный дизельный котел 4000 кВт российского производства работает с отечественными горелками EMMA, ILKA, РГМГ, ГБЛ, ГМ, ГМГ, АПНД, ГГ и импортными горелками EMMA, ILKA, UNIGAS, BALTUR, ECOSTAR. Горелки подают топливо в топочную камеру, где происходит его сжигание и нагрев теплоносителя. Блочная горелка осуществляет сжигание топлива, изменяет режим горения, обеспечивает поддержание в контуре котла температуру воды до 115 °С. Диапазон температуры воды в контуре агрегата задается на пульте управления. При достижении крайних значений автоматически осуществляется включение и выключение горелки. Этот режим обеспечивает надежную и экономичную работу котла.

Принцип работы дизельного котла 4000 кВт

Работа водогрейного отопительного котла 4000 кВт на дизельном топливе, с универсальной топочной камерой, осуществляется с широким рядом горелочных устройств. Топливо направляется в горелку, где смешивается с воздухом, воспламеняется и направляется в топочное пространство. Горелка регулирует скорость подачи топлива, исходя из его компонентов, и обеспечивает стабильность горения. Тепло передается экранам и с дымовыми газами направляется в конвективные поверхности нагрева, нагревая теплоноситель. Дымовые газы проходят конвективную поверхность нагрева, где охлаждаются до 200-180 °С и удаляются через дымовую трубу.

Заданный диапазон температуры воды, но не более 115 °С, поддерживается горелкой. По мере достижения предельных значений горелочное устройство автоматически отключается и включается, обеспечивая надежность и экономичность работы.

Монтаж и комплектация

Отечественный водогрейный котел 4000 кВт дизельный промышленный поставляется готовым напольным блоком в обшивке с паспортом и инструкцией по эксплуатации, окончательная цена включает базовую комплектацию, затворы, предохранительные клапаны, вентили, термометры, манометры, трехходовые краны. Автоматика, горелка, насосы поставляются по запросу.

Компактный горизонтальный напольный дизельный котел 4000 кВт для отопления устанавливается в котельной на специально подготовленную ровную поверхность и закрепляется анкерными болтами. Далее подсоединяется по воде, устанавливается запорная арматура на подводящем и отводящем трубопроводе, устанавливаются предохранительные клапаны, дренажи, воздушники и контрольно измерительные приборы, монтируется газоход.

Купить дизельный котел 4000 кВт

Для того чтобы купить котел 4000 кВт на дизельном топливе в Черкесске вы можете оформить заявку в отделе сбыта по телефону 8-800-700-06-43, либо оформить заявку онлайн. Инженеры-консультанты помогут выбрать подходящие модели и котельно-вспомогательное оборудование, рассчитают стоимость доставки до вашего региона и населенного пункта. Транспортирование котлоагрегатов может осуществляться транспортными компаниями, автомобильным транспортом, железнодорожным и речным видами транспорта.

Комплект поставки котла 4000 кВт дизельного

Цена водогрейного котла 4000 кВт дизельного включает в себя запорную арматуру и КИП в пределах котла, вентилятор поддува и предохранительные клапаны. Ниже приведена подробная информация.

Дополнительное оборудование котла 4000 кВт дизельного

Для эффективной и надежной работы котла 4000 кВт дизельного вам потребуется дополнительное оборудование - автоматика, дымосос, золоуловитель, насос сетевой и подпиточный, газоходы и переходники для газового тракта, дымовая труба. Мы предлагаем рассмотреть типовые варианты комплектации. В случае если у вас на объекте имеется насосное и тягодутьевое оборудование, мы можем проверить совместимость котла 4000 кВт дизельного нашего производства и вашего оборудования. Можем изготовить нестандартные узлы для выполнения быстрого монтажа котла - газоходы и узлы обвязки. Типовую схему монтажа котла вы можете посмотреть во вкладке схемы подключения.

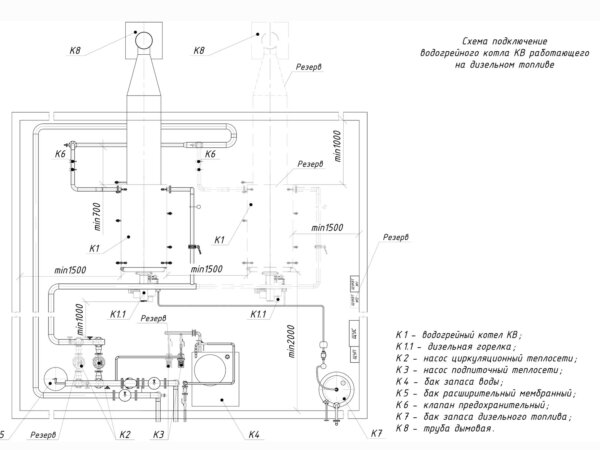
Монтаж и схемы подключения котла 4000 кВт дизельного

Водогрейный стальной отопительный котел 4000 кВт дизельный, предназначен для получения горячей воды номинальной температурой на выходе из котла от 95 до 115 °С рабочим давлением до 0,6 (6,0) МПа (кгс/см), используемой в системах централизованного теплоснабжения на нужды отопления, горячего водоснабжения. Устанавливается в производственных, промышленных и отопительных котельных.

Монтаж и подключение котла 4000 кВт дизельного

Схема подключения водогрейного котла на дизеле

Схемы подключения водогрейного котла на дизеле

Сертификаты и гарантии котла 4000 кВт дизельного

Водогрейный котел 4000 кВт дизельный имеет гарантийный срок 24 месяца. Срок работы при соблюдении правил монтажа и эксплуатации оборудования 10 лет.

Водогрейные котлы сертификат
Сертификат на водогрейные котлы
Сертификат на водогрейные котлы на газе и жидком топливе
Сертификат на водогрейные котлы на газе и жидком топливе

Подберите мощность котла для вашего объекта

Тип здания
Регион
Населенный пункт
Наружный объем здания
3)
Отапливаемый подвал
Объем подвала
3)

Отзывы о продукции

Другая похожая продукция

Газовый котел КВа 4.0 водогрейный
Котел 4.0 МВт газовый
Максимальная тепловая мощность, МВт 4, 4.0
Топливо Газ
Вид топки Газовая горелка
Отапливаемая площадь, м² от 33400 до 44000
1 680 000 ₽
Мазутный котел 4.0 МВт
Котел 4.0 МВт на мазуте
Максимальная тепловая мощность, МВт 4, 4.0
Топливо Мазут, Жидкое, Отработанное масло
Вид топки Мазутная горелка
Отапливаемая площадь, м² от 33400 до 44000
1 714 000 ₽
Дизельный котел 3.0 МВт
Котел 3.0 МВт на дизеле
Максимальная тепловая мощность, МВт 3, 3.0
Топливо Дизель, Жидкое
Вид топки Дизельная горелка
Отапливаемая площадь, м² от 25000 до 32900
1 400 000 ₽
Дизельный котел 3.5 МВт водогрейный
Котел 3.5 МВт на дизеле
Максимальная тепловая мощность, МВт 3.5
Топливо Дизель, Жидкое
Вид топки Дизельная горелка
Отапливаемая площадь, м² от 29300 до 38400
1 580 000 ₽
Котел под российскую горелку
Котел КВГ 4.0 МВт газовый (под отечественную горелку ГГ и ГБЛ)
Максимальная тепловая мощность, МВт 4
Топливо Газ
Вид топки Газовая горелка
Отапливаемая площадь, м² от 33400 до 44000
1 680 000 ₽
Котел под российскую горелку
Котел КВГМ 4.0 МВт мазутный (под отечественную горелку ГМГ)
Максимальная тепловая мощность, МВт 4
Топливо Мазут, Жидкое
Вид топки Мазутная горелка
Отапливаемая площадь, м² от 33400 до 44000
1 714 000 ₽
Котел под российскую горелку
Котел КВЖ 4.0 МВт дизельный (под отечественную горелку РМГ)
Максимальная тепловая мощность, МВт 4
Топливо Дизель, Жидкое
Вид топки Дизельная горелка
Отапливаемая площадь, м² от 33400 до 44000
1 680 000 ₽